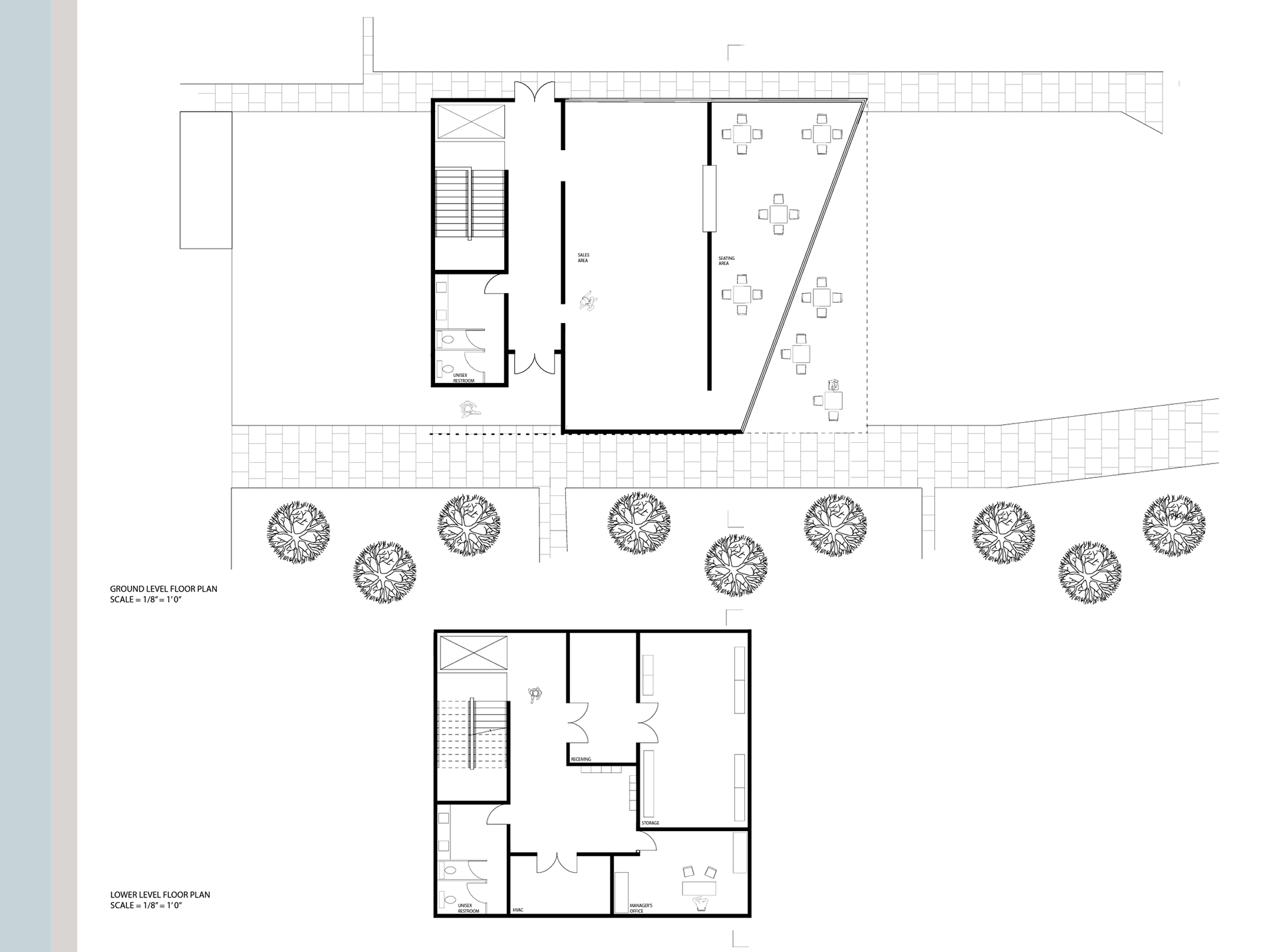
Citygarden is a 2.9-acre sculpture park located in downtown St. Louis, Missouri. The project was to design a 3,100-square-foot wine and cheese bar to add to the park
Spring 2022 | Architectural Design IV | Associate Professor Kirsten Kelsch Mauch