Home
About
Student Work
Engaged Leadership
Research: Earth Blocks
Graphic Design & Brand Evolution
|
Contact
Home
About
Student Work
Engaged Leadership
Research: Earth Blocks
Graphic Design & Brand Evolution
|
Contact
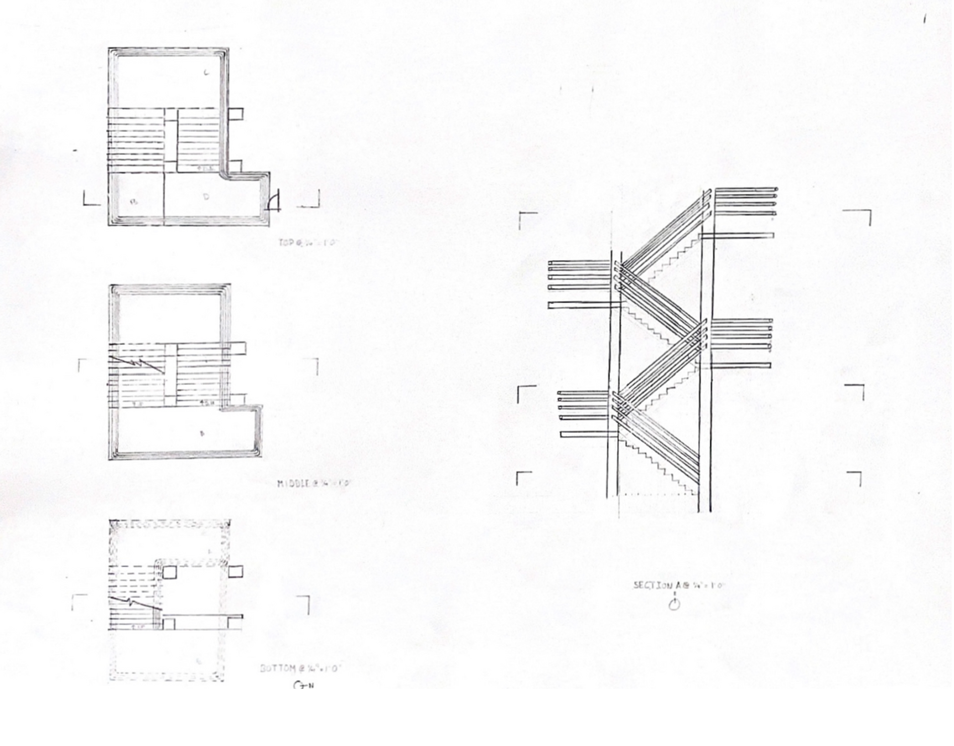
Jennifer White

Drawing Study: Staircase

Spring 2021 | Architectural Design II | Professor Tom Sofranko

You may also like

The Spiral: Earth Construction
2024
Pavilion 234
2021
Caribbean Futures: SoArc Workshop 2023
2022
NYC Bike Hotel: Bridging the Community Together
2025
St. Louis Wine & Cheese Bar
2022
Advanced Architectural Techniques: Outhouse
2025
Designing Confluence: SoArc Workshop 2022
2022
Hilltop Arboretum Community Center
2023
Hilltop Arboretum Pavilion: Connecting the Ravine
2025
Rainworks Challenge
2022
↑Back to Top